Francesco comerci
arquitecto

  • Proyectos
    • CONCURSOS
      • Archivo General de la Nación
      • BROU
      • NCI
      • CAF
      • CURE
      • Arroyo Miguelete
      • Rambla 25 de Agosto
      • Peatonal Sarandí
      • Plaza Wilson Ferreira
      • Liceo Francés
    • PROYECTOS
      • Apartamentos 5529
      • Casa Costa Rica
      • Casa Oficina - Zeta
      • Montelan
      • Parador Rambla
      • Vivienda en Carrasco
      • Vivienda en Laguna Blanca
    • OBRAS
      • CFCEM
      • Vivienda en José Ignacio
      • Pabellón Acuario
      • Edificio Tribeca
      • 1ero de Mayo
      • Restaurante Hemingway
      • Vivienda en Ruta 12
      • WTC 1 – Oficinas
      • WTC 2 – Oficinas
      • Conjunto Estrellas del Sur
  • obra publicada
  • equipo
  • contacto

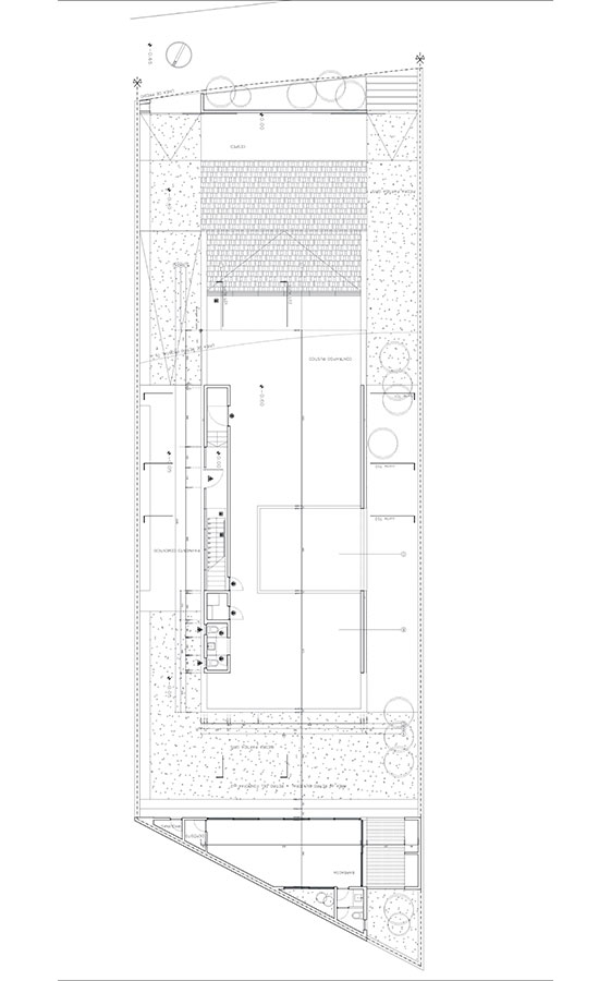
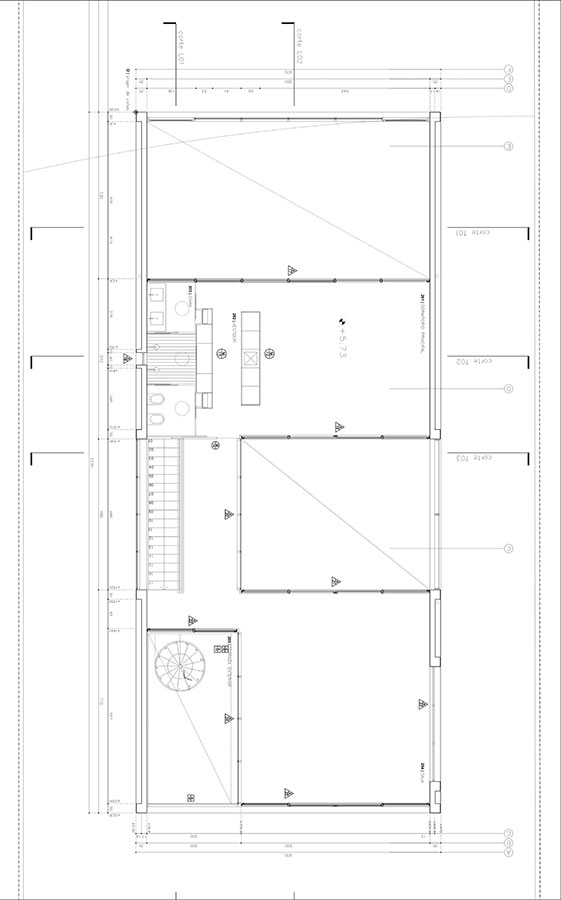
Vivienda en Carrasco

  • 2006
  • Montevideo

  • Autor
  • Arq. Francesco Comerci